subPage1

Costco Plaza

Costco Plaza is situated in one of the most desirable areas of Orange County in the City of San Juan Capistrano.
Costco Plaza is anchored by a recently expanded 145,000 sq ft Costco along with national and credit tenants including Staples and PetSmart. The property’s location enjoys strong visibility as it is situated at both the primary retail and regional auto retail corridors serving the surrounding area.
CURRENT OCCUPANTS
INCLUDE
  • PetSmart
  • Staples
  • El Pollo Loco
  • Tan 2 Envy
  • Monaco Jewelers
  • MetroPCS
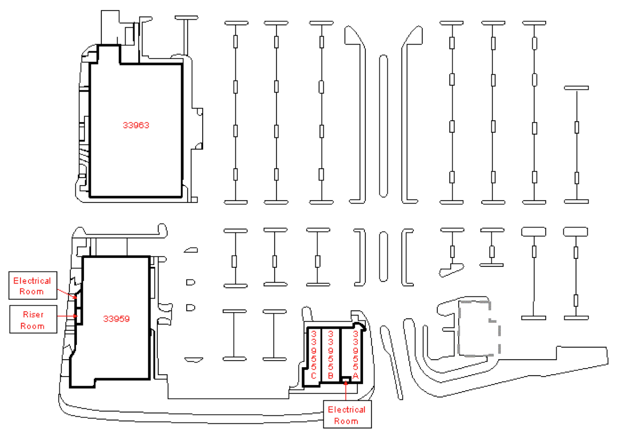
SITE MAP

33953-33963 Doheny Park Rd., San Juan Capistrano, CA

LOCATION

33953-33963 Doheny Park Rd., San Juan Capistrano, CA