subPage1

PACIFIC SHOPPING MALL

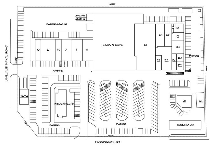
PACIFIC SHOPPING MALL (79,000 sq. ft. building area) is a shopping mall centered around a grocery store (SackNSave by Foodland) with many nationally recognized retailers including O'Reilly Auto Parts, McDonald's, Helle Gas To Go, Subway Sandwiches, Color Time Rent To Own, USPS, Napa Auto, and Waianae Coast Comprehensive Health Clinic.
CURRENT OCCUPANTS
INCLUDE
  • Foodland’s Sack N Save.
  • O’Reilly Auto Parts’s
  • Subway
  • HELE Gas
  • Napa Auto Parts
  • USPS
SITE MAP

87-2070 Farrington Hwy, Waianae, HI 96792

LOCATION

87-2070 Farrington Hwy, Waianae, HI 96792